产品中心
联系我们
金年会在线登陆
地址:辽宁省大连市庄河市徐岭镇杨树房村大连新兴产业经济区办公室212室
PM3力量型高速门
DYNACO PM3 是一款适用于频繁使用的大型室外高速门。极高的开启/关闭速度与密封性提高了物流效率,有效的防止雨,雪及灰尘等进入室内,在极端的室外天气下为您提供安逸的工作环境。DYNACO PM3 门帘柔软而富有弹性,整个门帘没有任何负重及硬质材料,确保在紧急情况下对操作员与货物进行彻底的保护。当门受到撞击后,该门配置脱轨自动修复系统, 无需任何手动复原。可使门的停工时间和维修成本降到最低
关键词:
高速
尺寸
最大
驱动
标准
技术
安全
系统
控制箱
专利
- 产品描述
-
国际专利级“齿轮齿条驱动”技术独一无二的驱动系统
高密封性,高抗风性
专利的轨道技术实现高密封性,减少对热量的损失而达到最大节能,同时摒弃了传统的刀片及毛刷密封系统。DYNACO PM3 室外高速门可抗3级风(欧洲标准),或450牛顿/平米
当门受到撞击后,该门配置脱轨自动修复系统, 无需任何手动复原。可使门的停工时间和维修成本降到最低
彻底安全
整个门帘部分没有任何硬质材料。电子眼及专利的WDD无线防夹装置可保证门的安全运行
开门机
由变频器驱动的电机可确保门平稳,顺畅的运行。该技术可保证门缓慢启动和缓慢停止,从而大大的延长了电机的寿命
DYNALOGIC 控制箱
功能强大的自我检测控制系统及可以扩展功能的丰富接口,可最大限度的满足客户对门不同控制功能及自动功能的需求
符合欧洲标准EN13241-1
欧洲标准EN13241-1 特性 标准 测试依据 测试结果 防水渗透 EN12425 EN12489 1级 抗风载荷 EN12424 EN12444 2*级 气密性能 EN12426 EN12427 1级 安全开启 EN12453 EN12445 通过 机械阻力 EN12604 EN12605 通过 意外移动 EN12604 EN12605 通过 耐热性 EN12428 EN12428 6,02W/m²K 性能(周期) EN12604 EN12605 750.000 * 表示抗风载荷分类用于最大尺寸。用于最大尺寸可达到 宽6000mm
X 高5500mm的门:3级产品特点 最大尺寸 宽9000mm*高5500mm 开启速度
关闭速度
0.8米/秒
0.4米/秒框架结构 镀锌钢 卷轴 钢-Ø 140 x 4 mm 侧导向条 材料为加强型聚乙烯。底部至300mm配
有轨道加强部件开门机 功率:1500瓦特
防护等级:IP65控制箱 DYNALOGIC控制箱:
控制箱安装在门旁边,它配备了一个开门按钮,
关门按钮,紧急停止开关及一个电源开关
防护等级:IP54 带有变频器标配探测器 门轨上的光电保护
WDD无线安全软底边保护系统电压
频率单相230伏-18安
50-60Hz门帘颜色可选 黄色 RAL1003 绿色 RAL6005
橙色 RAL2004 灰色 RAL7035
红色 RAL3000 白色 RAL9010
蓝色 RAL5002 黑色 RAL9005齿轮齿条驱动技术

侧导轨视图

门帘拉链视图

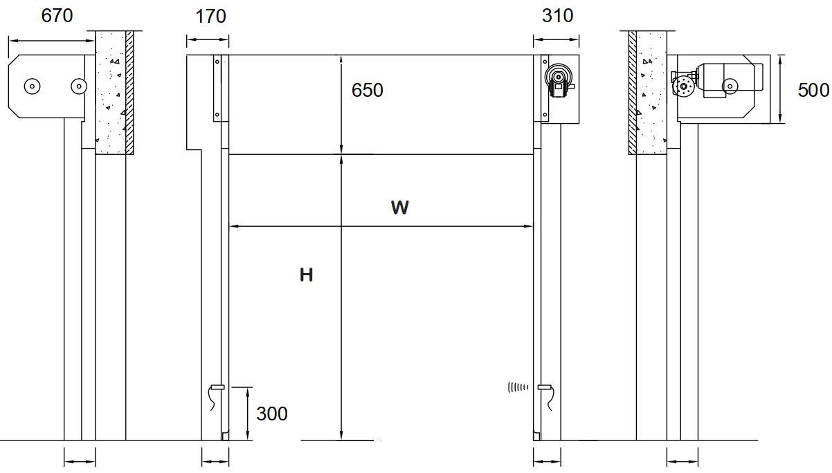
PM3力量型高速门安装需要的空间


所有标注的尺寸只是本产品本身需要的净尺寸,不包括安装和维修需要的额外空间. 门轴罩可提供的尺寸最大为5900mm
相关产品
免费获取产品报价

